Casa São Francisco

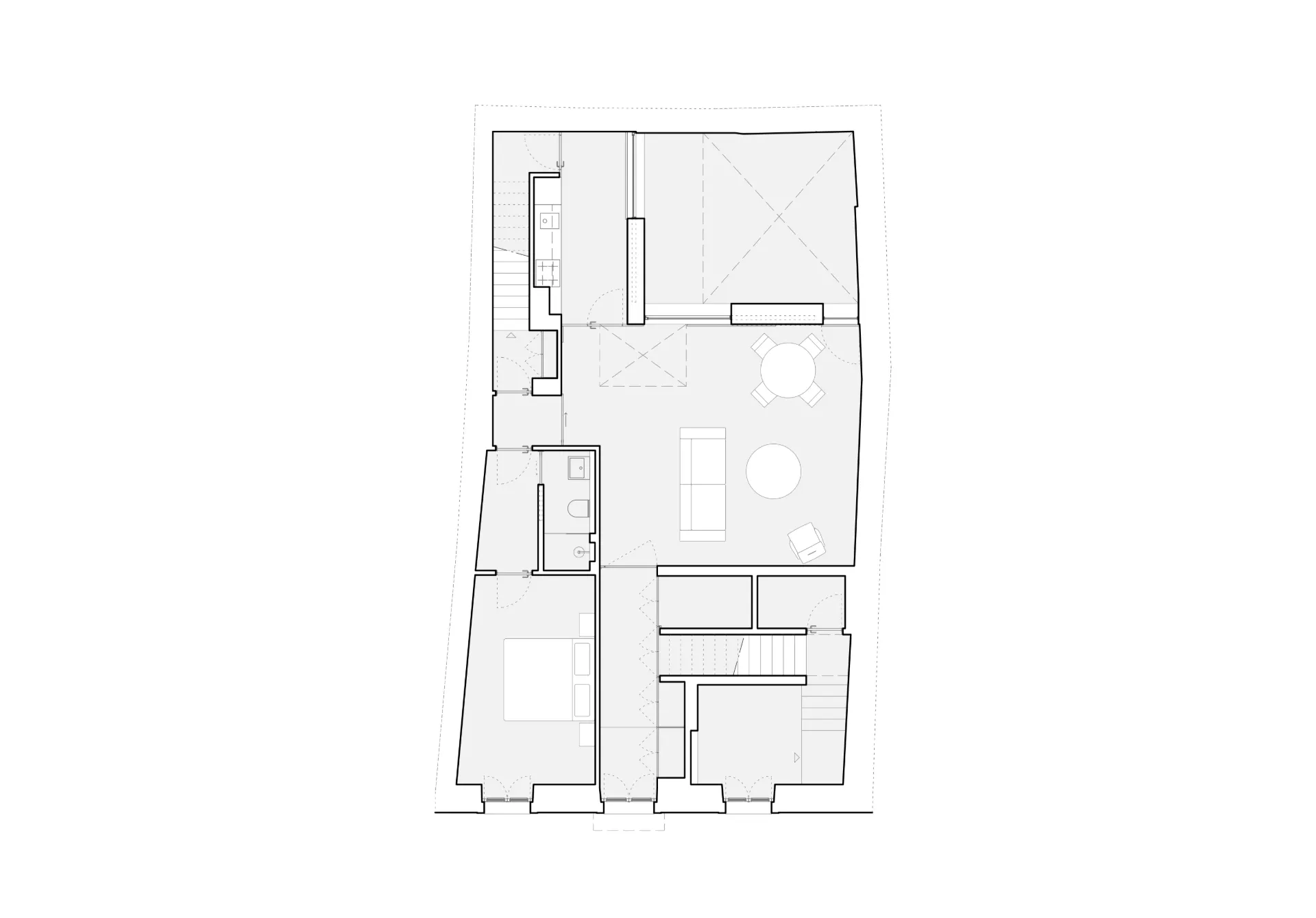
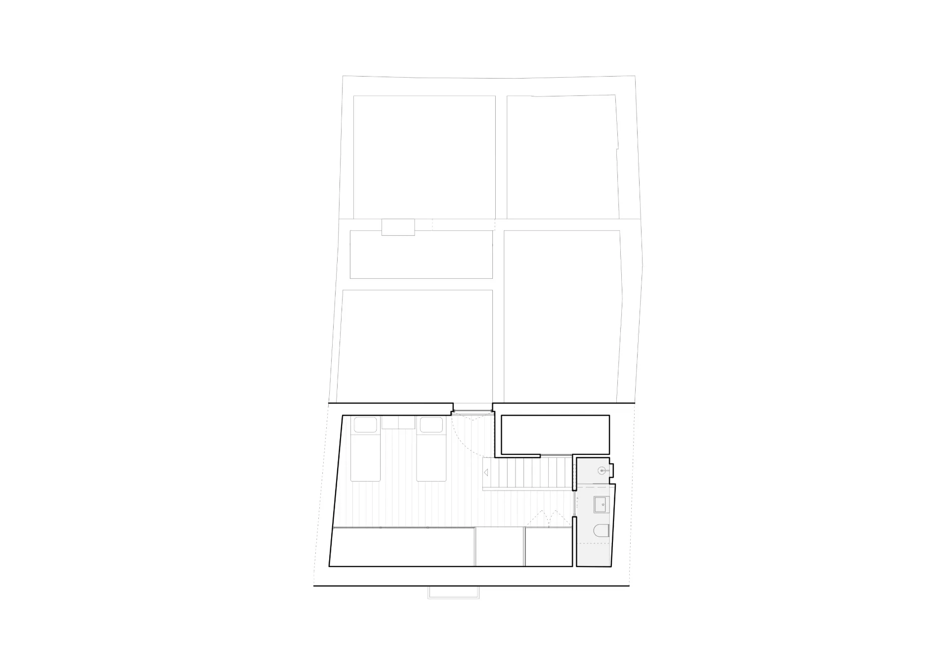
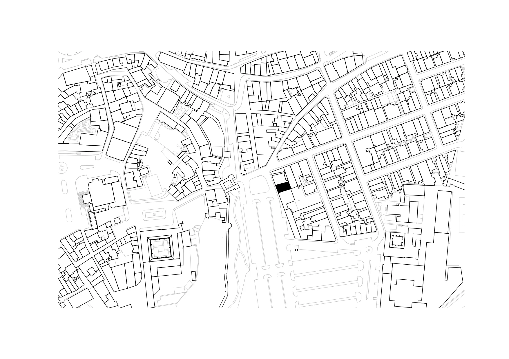
O projeto de São Francisco consiste na transformação de uma edificação devoluta e muito degradada, localizada junto às muralhas medievais e ao arco do Repouso, em duas casas dispostas em redor de um pátio. O projeto conciliou a organização das duas habitações, idênticas em termos programáticos e de superfície, com a integração de um pátio para cada fogo, em posição não contígua. Em termos construtivos, foi proposta uma estrutura de perfis metálicos, com pavimento sobre estrutura de madeira e placas OSB, e inclusão de paredes de tijolo maciço de produção artesanal da região.

Localização:
Faro, Portugal
Fotografia:
Tânia Marques Oliveira
Arquitetura:
Jennifer Silva Pereira e Miguel Reimão Costa
Colaboradores:
Vitor Félix Ribeiro
Área construída:
273 m²
Ano de projecto:
2018
Ano de conclusão:
2024
Estabilidade:
Eng.º Rui Graça e Costa
Especialidades:
Pró-Gótica, Lda
Empreiteiro:
Ápice Construções
Cliente:
Cristina Reimão Peres, Miguel Reimão Costa, Nuno Reimão Peres
Tipologia:
Habitacional