Casa do Carmo

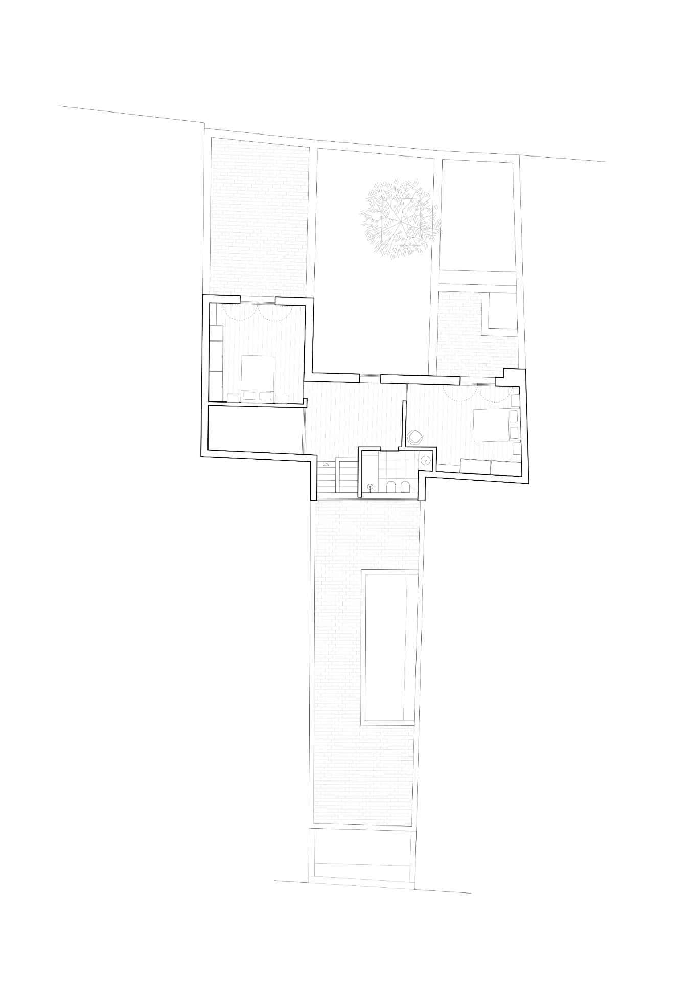
O imóvel integra-se na área de protecção da Igreja setecentista de Nossa Senhora do Carmo, inserido no quarteirão alongado que a separa do antigo Campo da Feira. Corresponde a uma parcela que resulta da composição de um rectângulo de 4,5 por 18 metros, a sul, com um quadrado de 14 metros de lado, a norte. 

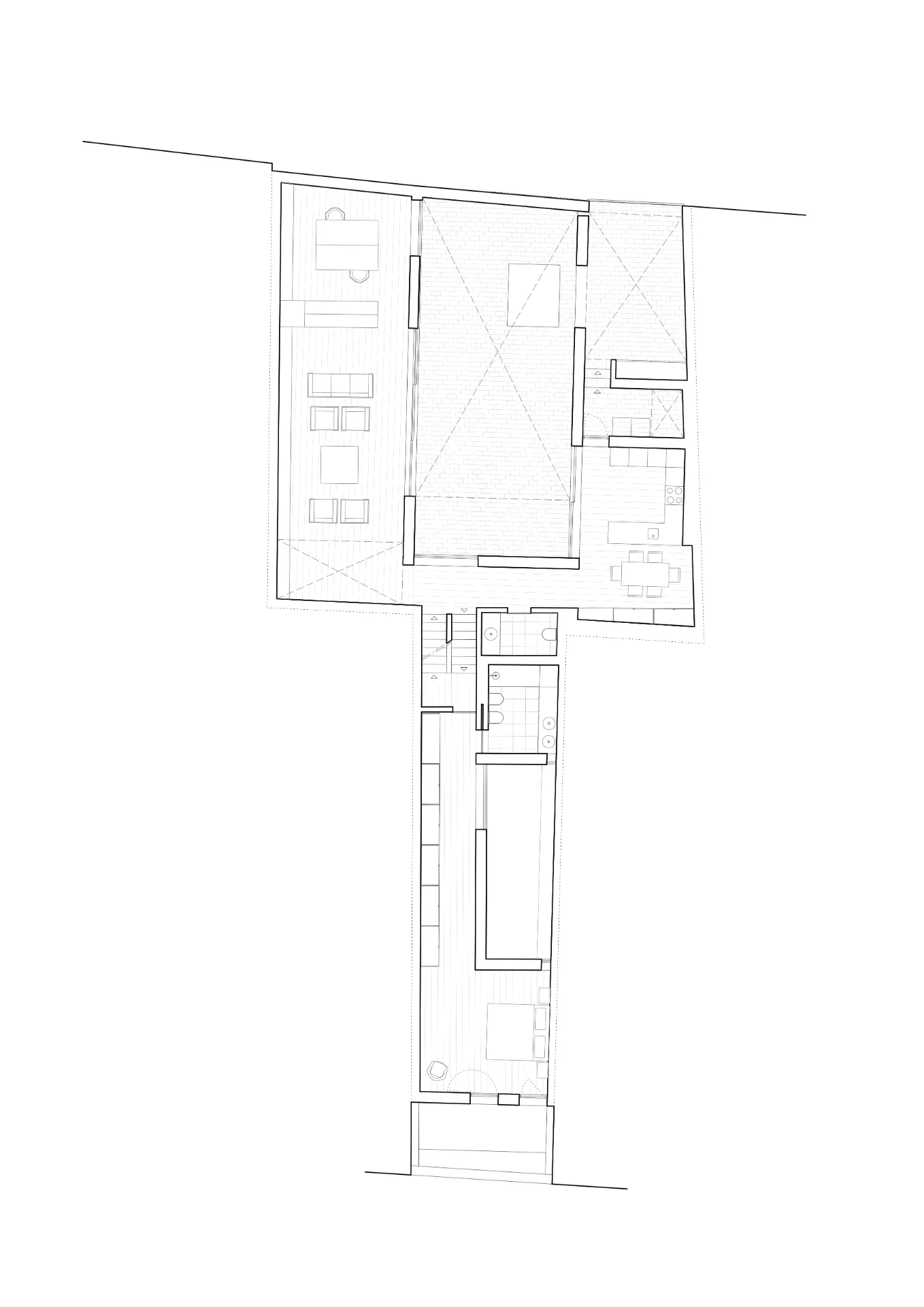
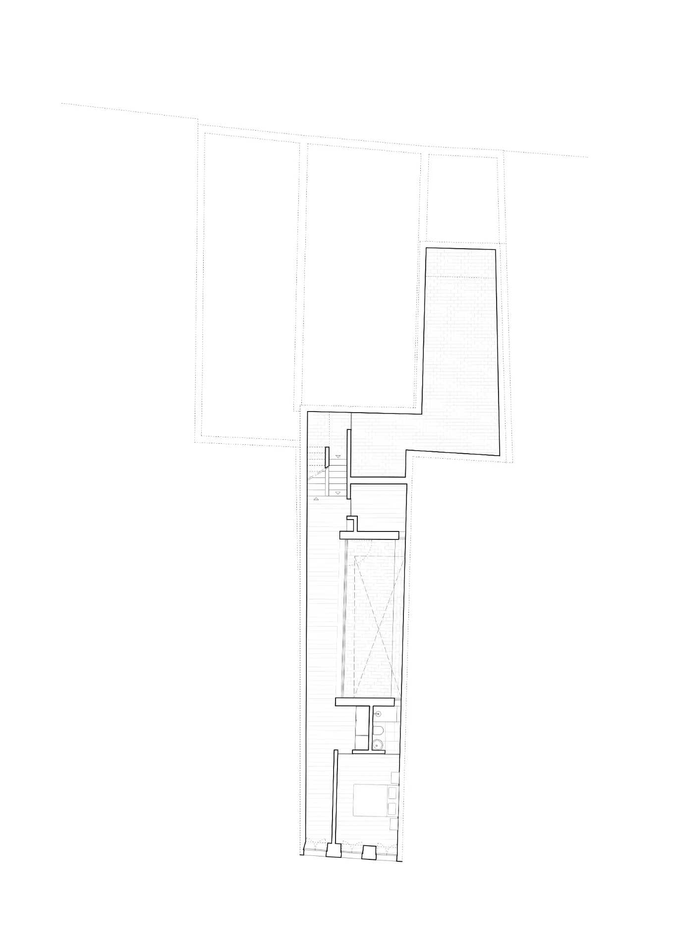
O conjunto dos edifícios encontrava-se em ruína, apenas conservando a fachada sul, característica do início do século passado, e o muro de logradouro a norte. A solução encontrada passa pela “construção” da diferença de cotas existente entre o espaço do rectângulo e o espaço do quadrado, e pela sua conversão no módulo de meio piso de escadas que, repetido na área de transição, organiza a distribuição dos compartimentos em altura. 

O pátio menor ocupa dois dos quartos, antes desprovidos de luz, do espaço do rectângulo onde se conserva a tipologia preexistente de distribuição através de corredor lateral. 

O pátio maior resulta da sobreposição do espaço do rectângulo alongado e do espaço do quadrado que se converte, frequentemente, num espaço único.

Localização:
Faro, Portugal
Fotografia:
FG + SG | Fotografia de Arquitectura
Arquitetura:
Jennifer Silva Pereira, Miguel Reimão Costa e Rogério Paulo Inácio
Colaboradores:
Stefano Malobbia
Ano de projecto:
2003
Ano de conclusão:
2005
Estabilidade:
Valdemar Custódio de Sousa Jacinto
Especialidades:
Valdemar Custódio de Sousa Jacinto
Luminotecnia:
Ilumat
Empreiteiro:
Cooptar, crl
Fase:
Concluído
Tipologia:
Habitacional